Mirna Botros

613-600-2626

72 Chateauguay Street - $754,800

72 Chateauguay Street - $754,800

72 Chateauguay Street

$754,800

603 - Russell Twp
Russell, OntarioK0A1W0
3 beds
3 baths
5 parking
MLS#: X12272239Listed: 8 months agoUpdated:4 days ago

Description

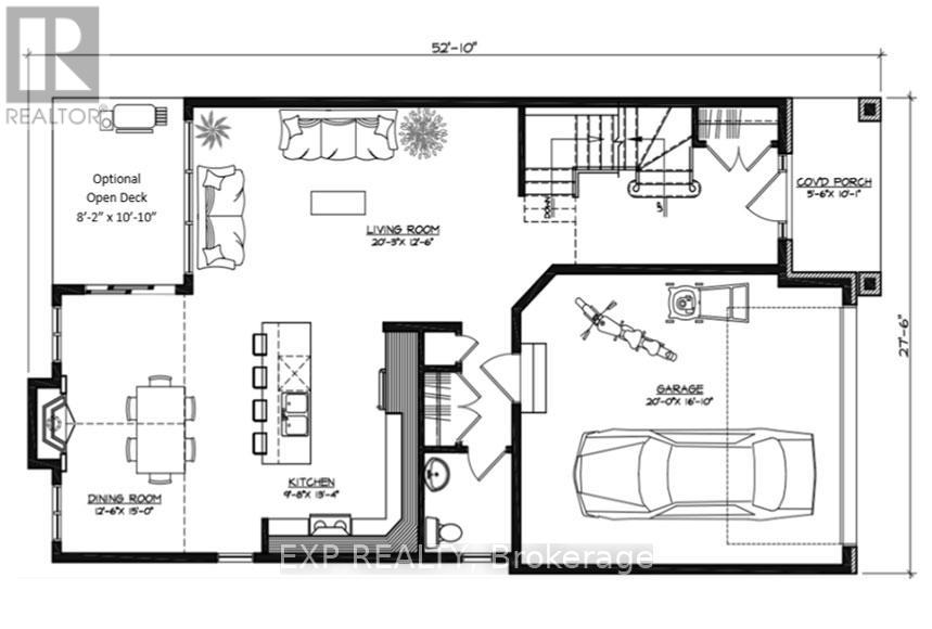
OPEN HOUSE Sunday March 1st 2:00pm - 4:00pm AT 63 Chateauguay Street, Embrun Introducing the Modern Sofia, a thoughtfully designed 2-storey home offering 1,703 square feet of comfortable and efficient living space. With 3 bedrooms, 2.5 bathrooms, and a spacious 2-car garage, this home is ideal for modern families or first-time buyers looking for a smart, stylish layout. The main floor welcomes you with a bright living room that flows into a side-set kitchen and dining area, creating a defined yet connected living space. Just off the garage, you'll find a convenient powder room perfect for guests and day-to-day practicality. Upstairs, the primary suite offers a peaceful escape, complete with a private ensuite bathroom. The Modern Sofia blends functional living with clean, contemporary design for a space you'll love to come home to. Constructed by Leclair Homes, a trusted family-owned builder known for exceeding Canadian Builders Standards. Specializing in custom homes, two-storeys, bungalows, semi-detached, and now offering fully legal secondary dwellings with rental potential in mind, Leclair Homes brings detail-driven craftsmanship and long-term value to every project. (id:58075)

Details

Details for 72 Chateauguay Street, Russell, Ontario
Property Type
Single Family
Building Type
House
Storeys
2
Neighborhood
603 - Russell Twp
Land Size
45 x 110 FT ; Corner Lot
Year Built
-
Annual Property Taxes
$0
Parking Type
Attached Garage, Garage
Inside
Appliances
Water Heater - Tankless
Rooms
6
Bedrooms
3
Bathrooms
3
Fireplace
-
Fireplace Total
-
Basement
Unfinished, Full
Building
Architecture Style
-
Direction
Cross Streets: Manoir. ** Directions: From St Thomas, head west on Chateauguay.
Type of Dwelling
house
Roof
-
Exterior
Stone, Vinyl siding
Foundation
Concrete
Flooring
-
Land
Sewer
Sanitary sewer
Lot Size
45 x 110 FT ; Corner Lot
Zoning
-
Zoning Description
Residential
Parking
Features
Attached Garage, Garage
Total Parking
5
Utilities
Cooling
None
Heating
Forced air, Natural gas
Water
Municipal water
Feature Highlights
Community
-
Lot Features
-
Security
-
Pool
-
Waterfront
-

Rooms

Rooms for 72 Chateauguay Street, Russell, Ontario
LevelNameDimensions
Main levelKitchen
Living room
Dining room
Second levelPrimary Bedroom
Bedroom 2
Bedroom 3
Mirna Botros

Contact Mirna

Email: [email protected]Phone: 613-600-2626Learn more about Mirna
Mirna Botros RealtorCopyright 2026Powered by: REALTOR.ca